Thorpe Park 'Ghost Train'

Thorpe Park, Surrey 2023

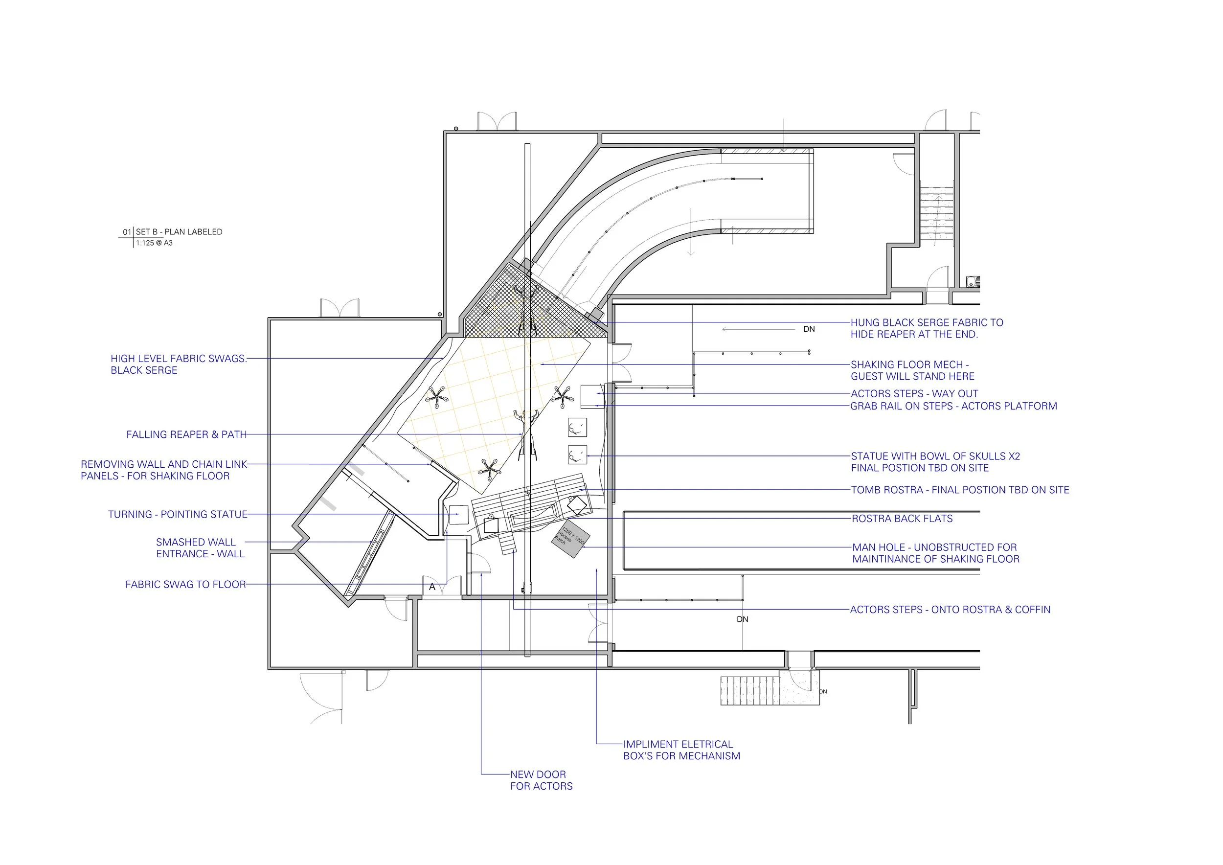
Ghost Train is a new attraction at Thorpe Park resort which takes visitors on a haunted journey, featuring live actors and multi-sensory elements. MDM Props designed the scenic elements, which included a train station platform, waiting room, crypt, and extensive signage throughout.

My Role Technical Designer, Production Managing & Installation Supervising

The Project

I led the technical draughting of the scenic elements of the Ghost Train.

Working alongside external specialists in lighting, AV, and ride engineering, and Merlin Entertainment's in-house technical advisers, I played a key role in selecting materials that would support both the design aesthetic and the attraction's performance requirements.

Throughout the process, I worked within the ride envelope, managing the integration of these technical systems while balancing creative and engineering requirements. I also oversaw the on-site rigging and lifting operations to ensure that all components were safely and efficiently positioned.

SIGNAGE

SET A - WAITING ROOM

SET B - THE CRYPT

SET C - THORPE STATION